Is it a GSV315 or an RSV315?
Before 2009 Enervex ( Exhausto / Exodraft ) upgraded the V4 Motors from a 17mm ( 1/2″ ) Shaft to a 19mm ( 3/4 ) Shaft…
If you are replacing an older 17mm V4 Motor you may also need to replace the Axial Vane or Impeller
The 1200795 V4 Motor is used for both GSV315 and RSV315… but use different Impellers

GSV 315 Impeller
633.0800.0010
Inlet Side Id 11 1/4″
Inlet Collar Od 12 3/8″
Oad 15 3/8″

RSV 315 Impeller
605.0800.0010
Inlet Side Id 9 3/4″
Inlet Collar Od 11″
Oad 15 3/8″
If the ID tag on the fan housing is unreadable or missing... how do I know if its an RSV315 or GSV315? Measure the Impeller Seat and the Fan Housing.

The Impeller Seat for the RSV315 is removable and replaceable… In Stock.
The Impeller Seat for the GSV315 is part of the lower housing and not removable…
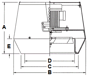
| GSV315 | |
|---|---|
| A | 16.94 |
| B x B | 25.61 |
| C x C | 20.69 |
| D | 15.76 |
| E | 5.12 |
| Note | RSV315 |
|---|---|
| A | 14.97 |
| B x B | 22.85 |
| C x C | 18.32 |
| D | 12.41 |
| E | 4.53 |

ME# 1200795 V4 Motor
650.0503.1200

RSV 315 Impeller Seat
605.0800.0007
The spinny thing ain't an impeller?
If the V4 Motor is driving an Axial Vane.. the fan model should be the GSV16 or RSV16.


The GSV016 and RSV016 use the same Housing, Axial Vane, Cooling Vane and Inlet for Axial Vane.
Same Motor but the replacement parts will be…
| GSV016 And RSV016 | |
|---|---|
| A | 14.97 |
| B x B | 22.85 |
| C x C | 18.32 |
| D | 12.41 |
| E | 4.53 |

Axial Vane
14″ OD

Inlet for Axial Vane
14 1/4″ ID
Cooling Vane
15″ OD
Enervex?... but my fan says Exodraft.
Exhausto is now Exodraft, distributed as Enervex.
Enervex Fans… draft solutions for kitchen and pizza oven exhaust.









